Alüminyum Hava Soğutmalı Yağ Soğutucu
Radyatör
* Hidrolik yağı soğutması
* Trafo yağı soğutması
* Pilastik enjeksiyon makineleri yağ soğutması
* Motor yağı Soğutması
* Biodizel uygulamalarında
* Kimya ve petrokimya tesislerinde
* İş makineleri ilave yağ soğutucu
Yağ soğutucu radyatör ölçüleri ;

-
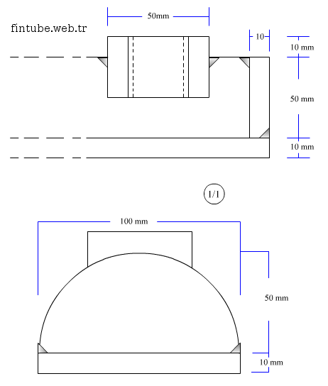
Kanatlı Boru Ölçüleri
Yağ soğutucu radyatör – Alüminyum ( tek metal ) Kanatlı
boru ölçüleri ;
Yağ soğutucu radyatör – Alüminyum üst kapak ;

-
Aluminyum yağ soğutucu – Üst kapak